Projecto habitacional constituído por quatro duplex, localizado em predrouços, Lisboa, junto ao rio.
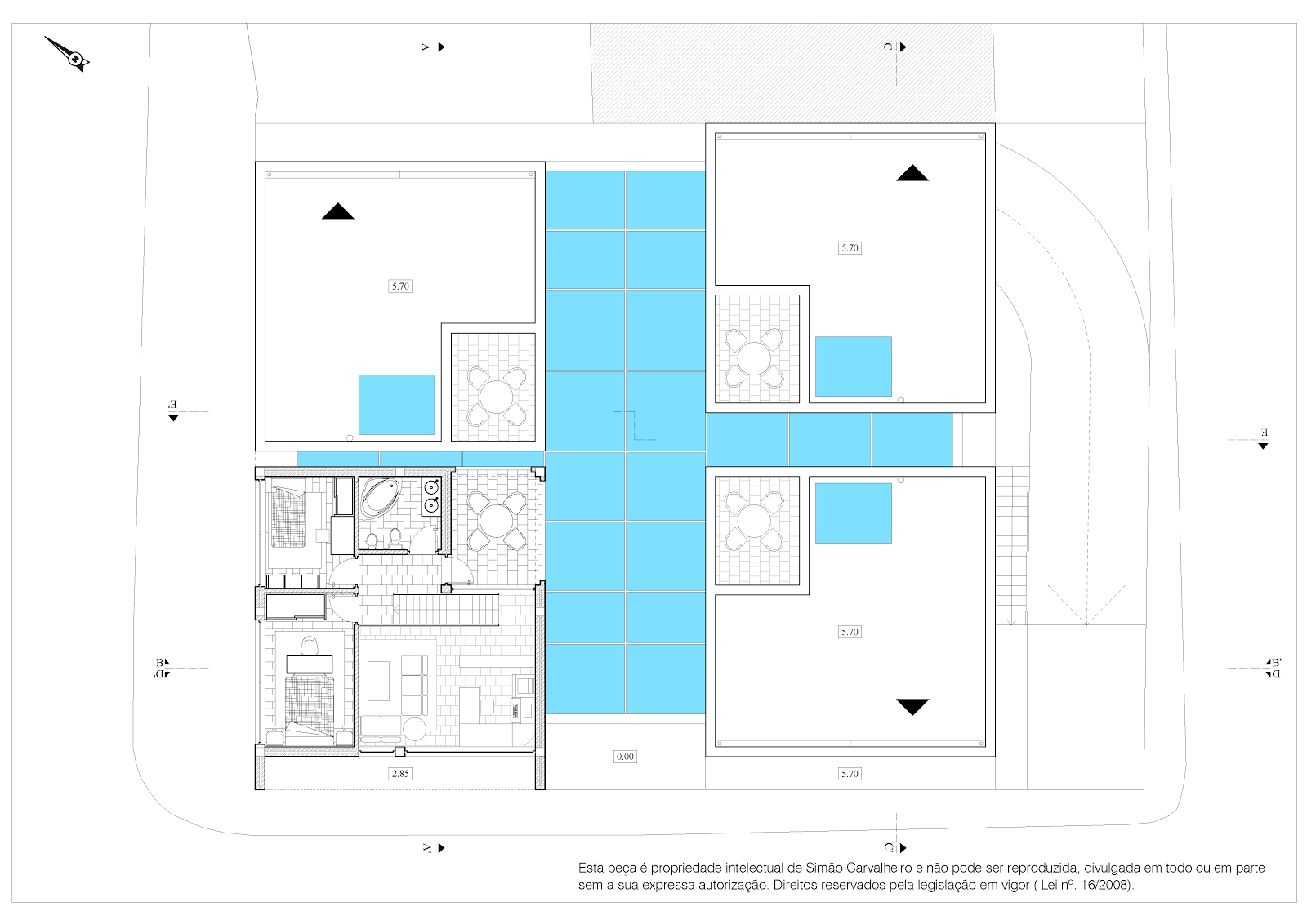
A ideia foi rentabilizar a área disponível num lote de dimensões médias e criar estruturas para habitação unifamiliar de grande simplicidade e qualidade, onde impera a funcionalidade dos espaços interligados de uma forma coerente e de fácil circulação. Sendo assim quatro cubos são conjugados entre si junto aos limites do lote e interligados por um volume horizontal transparente que serve de átrio de entrada e zona de circulação.
O piso térreo dos duplex alberga as áreas comuns da casa enquanto o piso de cima as áreas privadas e uma zona exterior. O complexo contém ainda uma garagem comum com acesso directo para o volume central e uma sala de condomínio situada por baixo de um dos cubos, abrindo uma excepção ao conjunto com um dos volumes a sobrepôr-se aos outros, contribuindo para uma harmonia arquitectónica profunda.
Perspectiva frontal
Perspectiva lateral

Planta do Rés-de-chão
Planta do 2º Andar
Planta do 2º Andar




Sem comentários:
Enviar um comentário